immeubles d’appartements protégés

Lieu
Orsières
Concours
2023, 1er prix
maître d’ouvrage
privé
Situation
Localisé au Sud du village d’Orsières, le quartier est composé de bâtiments de logements collectifs et d’infrastructures publiques dont l’EMS de la Providence qui se trouve dans le périmètre d’intervention. Avec la présence du Stade au Sud et du Cycle d’orientation au Nord, les abords du sites sont peu bâtis ce qui offre des dégagements dans toutes les directions sur les coteaux et les montagnes de l’Entremont.
Rapport au contexte et expression
Le projet propose de répartir les logements protégés dans deux volumes, créant avec le bâtiment existant de la Providence un ensemble cohérent. Leur forme pentagonale limite les longueurs de façade et permet d’avoir une volumétrie qui dialogue tant avec les immeubles d’habitations à l’Ouest qu’avec le bâtiment de l’EMS.
La disposition des bâtiments en quinconce ainsi que les plis de façade permettent d’éviter des rapports frontaux entre les appartements et avec l’EMS.
Les espaces générés entre les bâtiments créent une promenade et séquencent les vues dans et hors de l’îlot. Au centre un parc aménagé accueille la place de jeux, des espaces de rencontre et c’est vers cet espace que s’ouvrent les entrées des trois entités.
Les façades à la composition horizontale sont proposées avec un revêtement métallique dont la teinte et la réflexion évoluera avec le changement d’exposition au fil du jour et des saisons. Cette matérialité contribuera également à entretenir le dialogue avec l’EMS.
Concept architectural
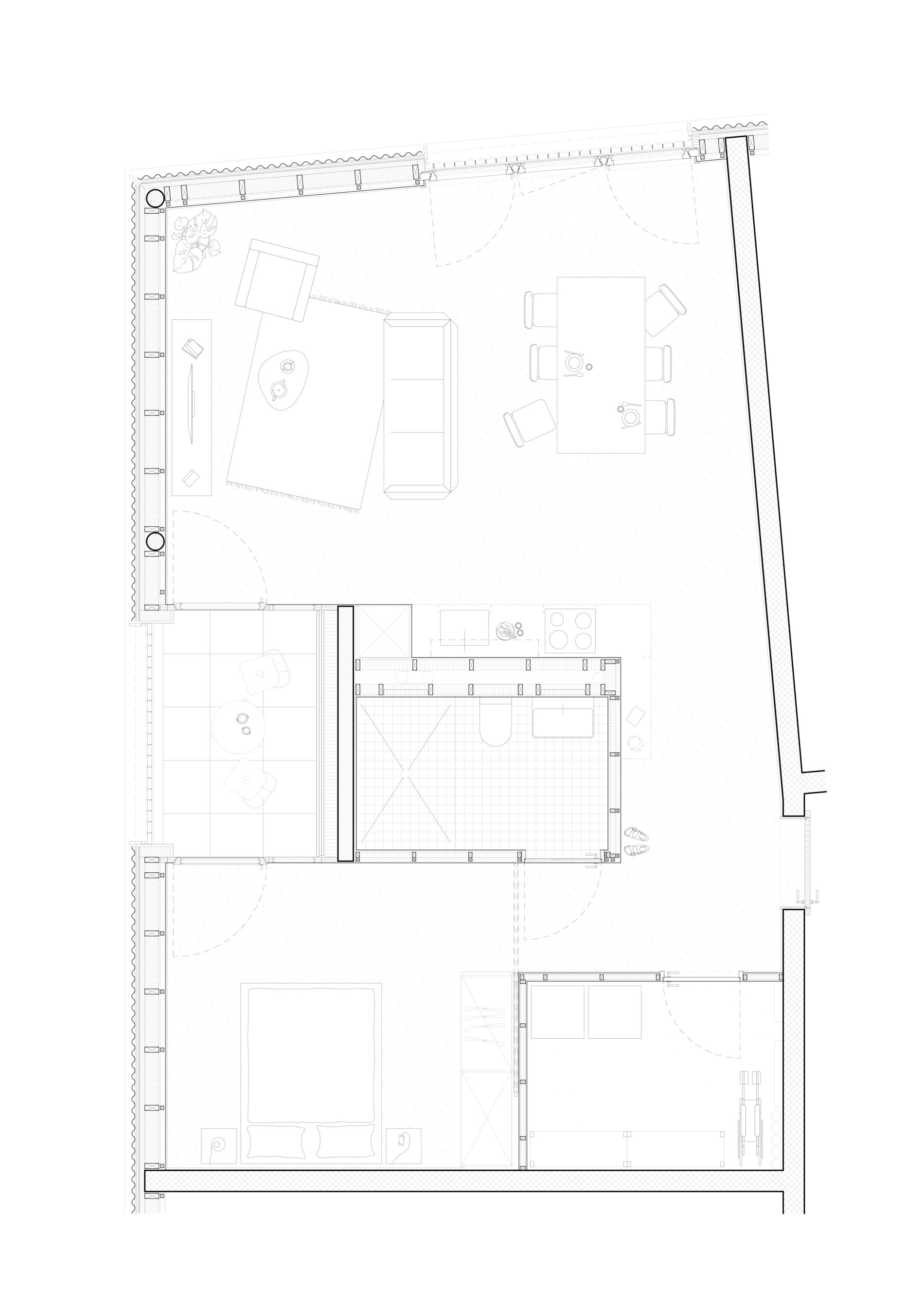
Les appartements s’articulent autour d’une cage d’escalier centrale généreuse et conviviale à l’éclairage naturel zénithal. Cinq appartements sont distribués par niveau, permettant à chaque logement de jouir d’une double orientation. Ils sont conçus comme une succession d’espaces, évitant les couloirs, qui s’orientent sur une loggia qui offre lumière, protection et privacité.
Les fenêtres coulissantes proposées sont généreuse et munies de garde corps, offrant la possibilité d’une ouverture complète.
Chaque résident dispose d’un réduit de rangement individuel positionné dans le logement pour plus de confort.
Le programme commun est disposé au rez-de-chaussée. Chaque partie est connectée à la distribution principale mais peut fonctionner de manière autonome.
ⓒ ingénieur civil, nco-ing | image, noue studio





